Casa indipendente in vendita

Nocera Umbra, Via Flaminia Sud - Gaifana
€ 135.000
Prezzo aggiornato
10 locali 10 locali
175 Mq 175 Mq
3 bagni 3 bagni

Casa indipendente in vendita

Nocera Umbra, Via Flaminia Sud - Gaifana

Descrizione annuncio

In posizione riservata ma ben collegata, proponiamo in vendita una casa singola con ampio giardino privato, situata nella tranquilla località di Gaifana, a pochi minuti dal centro di Nocera Umbra e dalle principali arterie di comunicazione della regione.

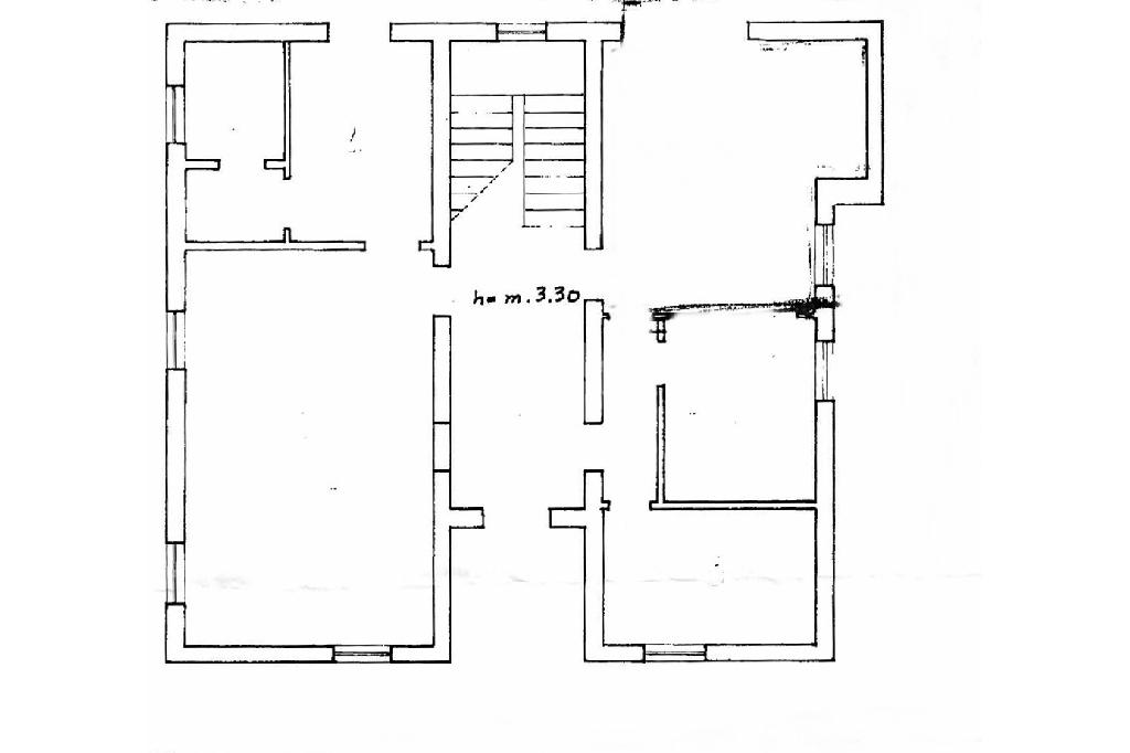
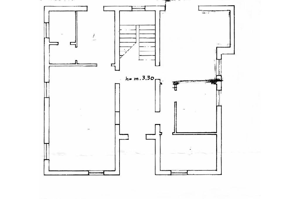
L'immobile, costruito negli anni '80 e ristrutturato alla fine degli anni '90, si sviluppa su tre livelli e offre spazi ampi e versatili, adatti sia a una grande famiglia sia a chi desidera una soluzione bifamiliare o un'abitazione da mettere a reddito.

Al piano terra si trovano l'ingresso principale, una spaziosa cantina, un locale rustico con camino, il garage, un ampio salone anch'esso con camino, la cucina e un comodo vano lavanderia. Il primo piano è attualmente suddiviso in due appartamenti indipendenti, ma può essere facilmente riconfigurato in un'unica unità abitativa.

Il primo appartamento è composto da soggiorno con angolo cottura, camera matrimoniale e bagno. Il secondo include una cucina abitabile, una camera, uno studio e un bagno. Entrambe le cucine hanno accesso diretto al terrazzo. Completa la proprietà il piano secondo, costituito da una soffitta.

Il giardino circostante, pianeggiante e ben esposto, garantisce privacy e spazi ideali per vivere all'aperto. La superficie complessiva del lotto è di circa 980 mq.

La zona di Gaifana si distingue per la tranquillità e la vicinanza a servizi essenziali e a itinerari turistici di grande interesse. La proprietà è facilmente raggiungibile dalla superstrada, che collega rapidamente a centri di rilievo come Assisi, Spello, Foligno, Gubbio e Perugia. L'ambiente naturale e il contesto collinare rendono questa soluzione ideale sia come residenza principale, sia come seconda casa per chi desidera un rifugio nel cuore verde dell'Umbria.

Soluzione adatta anche per attività ricettive come bed & breakfast o casa vacanze, grazie alla disposizione degli spazi e alla crescente attrattiva turistica della zona.

Mostra tutto

Nelle vicinanze

Trasporto pubblico Trasporto pubblico
Gaifana
Gaifana
810 m
Farmacia Farmacia
Farmacia Zucchini
1,1 Km
Supermercati Supermercati
Supermercati
90 m
Negozi Negozi
Negozi
990 m
Ristoranti Ristoranti
Il Molino
630 m
Pizzeria "Lo Chalet"
1,1 Km
Villa della Cupa
1,3 Km
Le Francesche
3,0 Km
Mostra tutto

Caratteristiche

Rif.:
61116046
Piano:
3 di 3 (Piano su più livelli)
Box:
1
Posti auto:
1
Terrazzi:
1
Camere da letto:
3
Mostra tutto
Prezzo Prezzo
€ 135.000
Rata mutuo Rata mutuo
€ 637 / mese
Spese annue Spese annue
€ 0
Proponi il tuo prezzoProponi il tuo prezzo

Classe Energetica

G
G
G
G
G
G
G
G
G
EP invernale del fabbricato:
EP estiva del fabbricato:
Anno di costruzione:
1982
Riscaldamento:
Autonomo
Tipo impianto:
A radiatori
Tipo alimentazione:
Metano

Prezzo ridotto di €1 (10%%)

Ti interessa visionare l'immobile?

Fissa un appuntamento  Fissa un appuntamento

Richiedi informazioni

Clicca su Leggi per aprire l'informativa
* Questi campi sono obbligatori

Calcola il tuo mutuo

Semplice e senza impegno
Anticipo

( % )
Mutuo

( % )

pochi semplici passi

inserisci i tuoi dati
Questionario completato
Grazie per aver richiesto un appuntamento senza impegno con un nostro Consulente del Credito e Assicurativo.

Hai inserito correttamente tutti i dati necessari e a breve riceverai una e-mail con un link da convalidare per inviare i tuoi dati.
Affiliato
Studio Gualdo Tadino Srl
P.zza Martiri della Libertà, 14 06023 Gualdo Tadino (PG)

Il nostro staff


  • Riccardo Costantini
    Affiliato

  • Ilaria Ceccarani
    Coordinatrice

  • Alessio Ramacci
    Responsabile

  • Claudia Patacca
    Coordinatrice

  • Martina Bellucci
    Collaboratrice

  • Lorenzo Biscontini
    Collaboratore

  • Claudia Fortis
    Collaboratrice

  • Sara Onori
    Collaboratrice
P.zza Martiri della Libertà, 14 06023 Gualdo Tadino (PG)
Zona: Gualdo Tadino - Fossato - Sigillo
Mostra su mappa
Orari: Ma. 9.00 - 13.00 Pm. 15.30- 19.30 Sabato pomeriggio su appuntamento.
Affiliato
Studio Gualdo Tadino Srl
P.zza Martiri della Libertà, 14 06023 Gualdo Tadino (PG)

2025 Tecnocasa Franchising S.p.A. - P. IVA 08365160152 - Via Monte Bianco 60/A 20089 Rozzano (MI). Ogni agenzia ha un proprio titolare ed è autonoma. Privacy policy | Policy utilizzo | Cookie policy