Villa a schiera in vendita

Gualdo Tadino, Via delle Cartiere
€ 179.000
8 locali 8 locali
190 Mq 190 Mq
2 bagni 2 bagni

Villa a schiera in vendita

Gualdo Tadino, Via delle Cartiere

Descrizione annuncio

In una delle zone più richieste e servite di Cartiere, particolarmente apprezzata dalle famiglie per tranquillità e comodità, proponiamo in vendita villette a schiera costruita nel 2006, mantenuta in perfette condizioni e pronta per essere abitata.

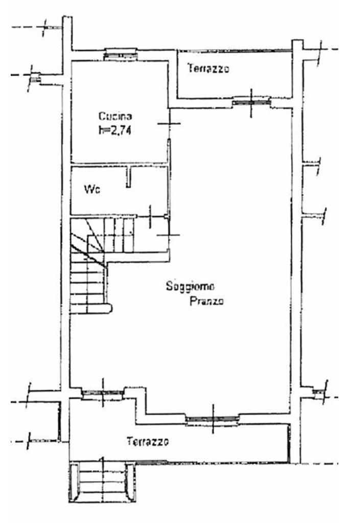
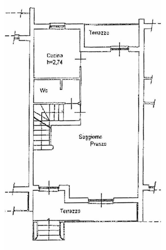
L’abitazione si distingue per spazi ben distribuiti e funzionali. Al piano principale troviamo una luminosissima sala, ideale per momenti di relax e convivialità, una cucina separata e ben organizzata, perfetta per la vita quotidiana. La zona notte ospita tre camere da letto, pensate per garantire comfort e privacy a tutta la famiglia, e due bagni moderni e curati.

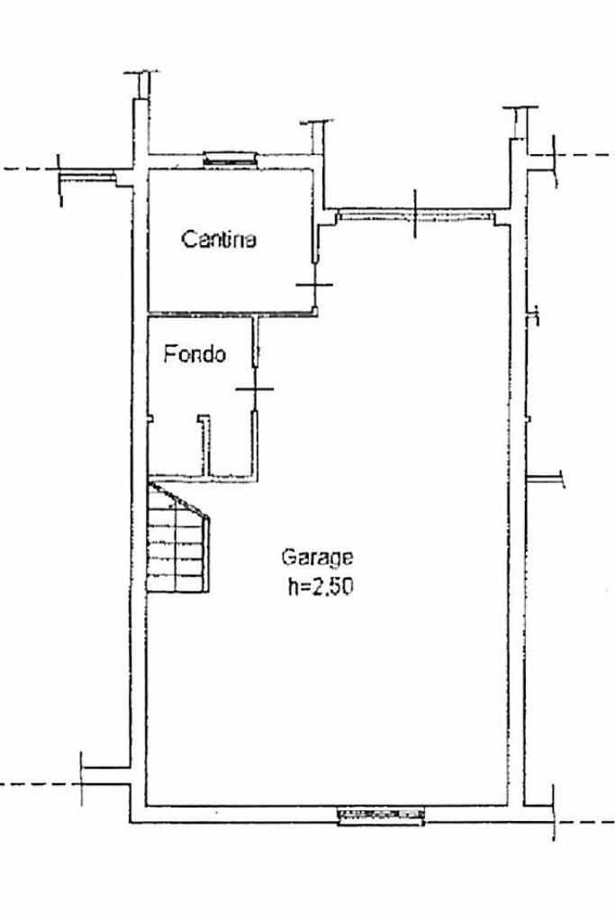
Completano la proprietà importanti spazi accessori: ampio garage, cantina e lavanderia, elementi sempre più ricercati e fondamentali per una gestione pratica della casa. All’esterno, la villetta dispone di due balconi e di un piccolo cortile privato, ideale per chi desidera uno spazio all’aperto riservato per bambini, animali o momenti di relax.

Una soluzione abitativa completa, in contesto residenziale tranquillo ma vicinissimo a tutti i servizi, perfetta per chi cerca qualità, comfort e una casa pronta da vivere.
Occasione ideale per famiglie che desiderano spazio, funzionalità e una posizione strategica.

Mostra tutto

Nelle vicinanze

Trasporto pubblico Trasporto pubblico
Gualdo Tadino
Gualdo Tadino
960 m
Ricariche auto elettriche Ricariche auto elettriche
Impianti Sportivi
670 m
Centro Commerciale Porta Nova
840 m
Pista Cilabile
1,5 Km
Chiesa San Rocco
2,0 Km
Eneldrive Giardini Pubblici
2,0 Km
Scuole Scuole
Scuola elementare Cartiere
500 m
Scuola Media Statale Franco Storelli
1,4 Km
Palestra - Scuola Media Statale Franco Storelli
1,4 Km
Scuole
2,1 Km
Farmacia Farmacia
Parafarmacia Conad
910 m
Farmacia
1,8 Km
Supermercati Supermercati
Famila
630 m
Conad
930 m
Bar Bar
Cattleya Disco Club
810 m
Bellagio Bar
1,4 Km
Bar
2,0 Km
Ristoranti Ristoranti
Bordocampo
840 m
La Terrazza di San Guido
1,1 Km
Mostra tutto

Caratteristiche

Rif.:
61157750
Piano:
3 di 3 (Piano su più livelli)
Box:
1
Posti auto:
3
Balconi:
2
Camere da letto:
3
Mostra tutto
Prezzo Prezzo
€ 179.000
Rata mutuo Rata mutuo
€ 836 / mese
Proponi il tuo prezzoProponi il tuo prezzo

Classe Energetica

E
E
E
E
E
E
E
E
E
EP globale non rinnovabile:
155.64 kW h/m² anno
EP invernale del fabbricato:
EP estiva del fabbricato:
Anno di costruzione:
2006
Riscaldamento:
Autonomo
Tipo impianto:
A radiatori
Tipo alimentazione:
Metano

Ti interessa visionare l'immobile?

Fissa un appuntamento  Fissa un appuntamento

Richiedi informazioni

Clicca su Leggi per aprire l'informativa
* Questi campi sono obbligatori

Calcola il tuo mutuo

Semplice e senza impegno
Anticipo

( % )
Mutuo

( % )

pochi semplici passi

inserisci i tuoi dati
Questionario completato
Grazie per aver richiesto un appuntamento senza impegno con un nostro Consulente del Credito e Assicurativo.

Hai inserito correttamente tutti i dati necessari e a breve riceverai una e-mail con un link da convalidare per inviare i tuoi dati.
Affiliato
Studio Gualdo Tadino Srl
P.zza Martiri della Libertà, 14 06023 Gualdo Tadino (PG)

Il nostro staff


  • Riccardo Costantini
    Affiliato

  • Ilaria Ceccarani
    Coordinatrice

  • Alessio Ramacci
    Responsabile

  • Claudia Patacca
    Coordinatrice

  • Martina Bellucci
    Collaboratrice

  • Lorenzo Biscontini
    Collaboratore

  • Claudia Fortis
    Collaboratrice

  • Sara Onori
    Collaboratrice
P.zza Martiri della Libertà, 14 06023 Gualdo Tadino (PG)
Zona: Gualdo Tadino - Fossato - Sigillo
Mostra su mappa
Orari: Ma. 9.00 - 13.00 Pm. 15.30- 19.30 Sabato pomeriggio su appuntamento.
Affiliato
Studio Gualdo Tadino Srl
P.zza Martiri della Libertà, 14 06023 Gualdo Tadino (PG)

2026 Tecnocasa Franchising S.p.A. - P. IVA 08365160152 - Via Monte Bianco 60/A 20089 Rozzano (MI). Ogni agenzia ha un proprio titolare ed è autonoma. Privacy policy | Policy utilizzo | Cookie policy