Casa semindipendente in vendita

Gualdo Tadino, Via Tagina
€ 155.000
Prezzo aggiornato
10 locali 10 locali
250 Mq 250 Mq
2 bagni 2 bagni

Casa semindipendente in vendita

Gualdo Tadino, Via Tagina

Descrizione annuncio

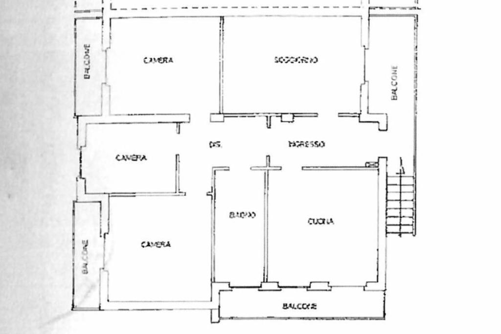
A Gualdo Tadino, in Via Tagina, proponiamo in vendita una porzione di villa bifamiliare ideale per chi è alla ricerca di spazi generosi, indipendenza e una soluzione pronta da abitare, in un contesto residenziale tranquillo e ben collegato ai principali servizi della città. L’immobile, costruito nella seconda metà degli anni ’70, si presenta in buone condizioni di manutenzione; il tetto è stato rifatto nei primi anni 2000, elemento che rappresenta un importante valore aggiunto. La casa è abitabile da subito, con ambienti ampi e ben distribuiti, perfetti per la vita familiare. Il piano seminterrato accoglie una spaziosa taverna con camino, ambiente caldo e conviviale, ideale per cene in compagnia e momenti di relax. Troviamo inoltre un’ulteriore grande stanza polivalente, un ripostiglio e il garage, comodamente collegato all’abitazione. L’appartamento principale si sviluppa al piano primo, con accesso indipendente dall’esterno.
L’ingresso conduce a una distribuzione interna razionale e funzionale: cucina abitabile con balcone, soggiorno luminoso con ampio balcone, due camere matrimoniali, entrambe con balcone , cameretta, bagno finestrato. Ogni ambiente gode di buone dimensioni e sfoghi esterni, caratteristica particolarmente apprezzata per luminosità e vivibilità quotidiana. Completa la proprietà un sottotetto ad uso soffitta, utile come spazio di deposito. All’esterno la casa dispone di un ampio piazzale pavimentato e completamente recintato, ideale per parcheggi, momenti all’aperto o per chi ha bambini. Il giardino con olivi aggiunge un tocco autenticamente umbro alla proprietà, offrendo uno spazio verde riservato e piacevole. Una soluzione che rappresenta un’ottima opportunità per famiglie grazie alla metratura, alla distribuzione degli spazi e alla posizione strategica in una delle zone residenziali più richieste di Gualdo Tadino.

Mostra tutto

Nelle vicinanze

Trasporto pubblico Trasporto pubblico
Gualdo Tadino
Gualdo Tadino
1,5 Km
Ricariche auto elettriche Ricariche auto elettriche
Chiesa San Rocco
660 m
Zona Industriale Sud
750 m
Pista Cilabile
1,0 Km
Gualdo Tadino Giardini Pubblici | EnelX
1,4 Km
Eneldrive Giardini Pubblici
1,4 Km
Scuole Scuole
Scuole
540 m
Scuola Media Statale Franco Storelli
1,2 Km
Palestra - Scuola Media Statale Franco Storelli
1,2 Km
Scuola elementare Cartiere
1,9 Km
Farmacia Farmacia
Farmacia
1,2 Km
Parafarmacia Conad
1,7 Km
Supermercati Supermercati
Conad
1,7 Km
Famila
1,8 Km
Bar Bar
Bellagio Bar
1,1 Km
Bar
1,5 Km
Cattleya Disco Club
1,7 Km
Ristoranti Ristoranti
Bordocampo
1,6 Km
La Terrazza di San Guido
2,2 Km
Mostra tutto

Caratteristiche

Rif.:
61177104
Piano:
2 di 2 (Piano su più livelli)
Box:
1
Posti auto:
2
Balconi:
4
Camere da letto:
3
Mostra tutto
Prezzo Prezzo
€ 155.000
Rata mutuo Rata mutuo
€ 736 / mese
Proponi il tuo prezzoProponi il tuo prezzo

Classe Energetica

G
G
G
G
G
G
G
G
G
EP invernale del fabbricato:
EP estiva del fabbricato:
Anno di costruzione:
1990
Riscaldamento:
Autonomo
Tipo impianto:
A radiatori
Tipo alimentazione:
Metano

Prezzo ridotto di €1 (9%%)

Ti interessa visionare l'immobile?

Fissa un appuntamento  Fissa un appuntamento

Richiedi informazioni

Clicca su Leggi per aprire l'informativa
* Questi campi sono obbligatori

Calcola il tuo mutuo

Semplice e senza impegno
Anticipo

( % )
Mutuo

( % )

pochi semplici passi

inserisci i tuoi dati
Questionario completato
Grazie per aver richiesto un appuntamento senza impegno con un nostro Consulente del Credito e Assicurativo.

Hai inserito correttamente tutti i dati necessari e a breve riceverai una e-mail con un link da convalidare per inviare i tuoi dati.
Affiliato
Studio Gualdo Tadino Srl
P.zza Martiri della Libertà, 14 06023 Gualdo Tadino (PG)

Il nostro staff


  • Riccardo Costantini
    Affiliato

  • Ilaria Ceccarani
    Coordinatrice

  • Alessio Ramacci
    Responsabile

  • Claudia Patacca
    Coordinatrice

  • Martina Bellucci
    Collaboratrice

  • Lorenzo Biscontini
    Collaboratore

  • Claudia Fortis
    Collaboratrice

  • Sara Onori
    Collaboratrice
P.zza Martiri della Libertà, 14 06023 Gualdo Tadino (PG)
Zona: Gualdo Tadino - Fossato - Sigillo
Mostra su mappa
Orari: Ma. 9.00 - 13.00 Pm. 15.30- 19.30 Sabato pomeriggio su appuntamento.
Affiliato
Studio Gualdo Tadino Srl
P.zza Martiri della Libertà, 14 06023 Gualdo Tadino (PG)

2026 Tecnocasa Franchising S.p.A. - P. IVA 08365160152 - Via Monte Bianco 60/A 20089 Rozzano (MI). Ogni agenzia ha un proprio titolare ed è autonoma. Privacy policy | Policy utilizzo | Cookie policy