Casa semindipendente in vendita

Gualdo Tadino, Fraz. Rasina - Rasina
€ 145.000
8 locali 8 locali
140 Mq 140 Mq
2 bagni 2 bagni

Casa semindipendente in vendita

Gualdo Tadino, Fraz. Rasina - Rasina

Descrizione annuncio

Gualdo Tadino, fraz. Rasina

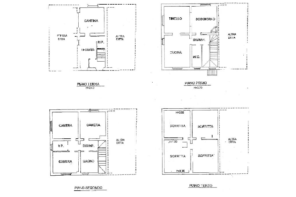
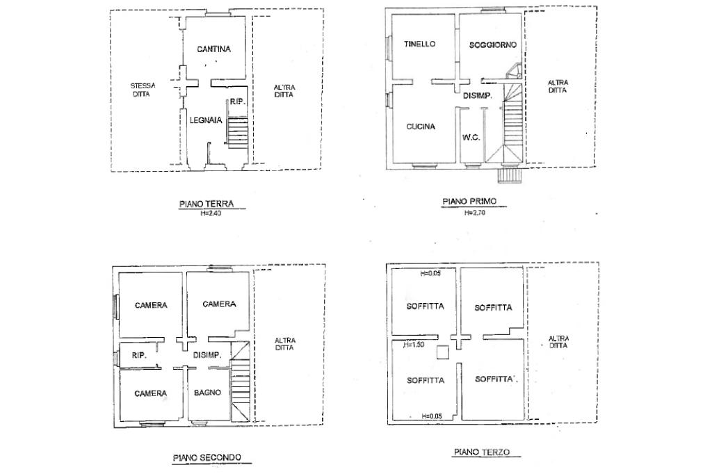
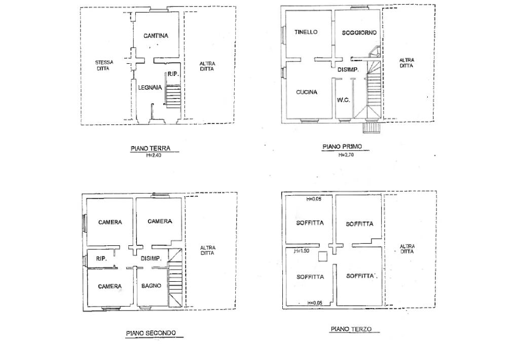
A cinque minuti dal centro di Gualdo Tadino, proponiamo in vendita una splendida porzione di casa semi indipendente, completamente ristrutturata e disposta su tre livelli.

Al piano terra, la proprietà offre un doppio garage totalmente rifinito e pavimentato, oltre a una piccola cantina.

Salendo al primo piano, troverete un'ampia cucina abitabile ideale per pranzi e cene in famiglia, un grande salone luminoso perfetto per momenti di relax, un vano pluriuso versatile per soddisfare diverse esigenze, e un bagno comodo e funzionale.

Il piano secondo ospita la zona notte, con tre accoglienti camere da letto, di cui una con predisposizione a cucina, e un grande bagno, pensato per garantire il massimo comfort.

Completano la proprietà tre annessi, uno completo di terreno e recintato, tutti vicinissimi alla casa.

Questa casa è la soluzione ideale per chi cerca un'abitazione elegante e pronta da vivere, in una posizione tranquilla ma vicina a tutti i servizi.

Ideale anche per attività ricettiva , B&B.

Possibilità, con pochi lavori interni, di dividere la proprietà in tre appartamenti.

Mostra tutto

Nelle vicinanze

Trasporto pubblico Trasporto pubblico
Gualdo Tadino
Gualdo Tadino
2,8 Km
Ricariche auto elettriche Ricariche auto elettriche
Zona Industriale Sud
1,8 Km
Pista Cilabile
2,3 Km
Chiesa San Rocco
2,5 Km
Centro Commerciale Porta Nova
3,0 Km
Scuole Scuole
Scuole
2,3 Km
Scuola Media Statale Franco Storelli
2,9 Km
Palestra - Scuola Media Statale Franco Storelli
3,0 Km
Farmacia Farmacia
Parafarmacia Conad
2,9 Km
Farmacia
3,0 Km
Supermercati Supermercati
Conad
2,9 Km
Bar Bar
Bellagio Bar
2,8 Km
Mostra tutto

Caratteristiche

Rif.:
60824663
Piano:
2 di 2 (Piano medio)
Box:
1
Posti auto:
2
Camere da letto:
3
Arredamento:
Completo
Mostra tutto
Prezzo Prezzo
€ 145.000
Rata mutuo Rata mutuo
€ 684 / mese
Spese annue Spese annue
€ 0
Proponi il tuo prezzoProponi il tuo prezzo

Classe Energetica

G
G
G
G
G
G
G
G
G
Anno di costruzione:
2000
Riscaldamento:
Autonomo
Tipo impianto:
A radiatori
Tipo alimentazione:
Metano

Ti interessa visionare l'immobile?

Fissa un appuntamento  Fissa un appuntamento

Richiedi informazioni

Clicca su Leggi per aprire l'informativa
* Questi campi sono obbligatori

Calcola il tuo mutuo

Semplice e senza impegno
Anticipo

( % )
Mutuo

( % )

pochi semplici passi

inserisci i tuoi dati
Questionario completato
Grazie per aver richiesto un appuntamento senza impegno con un nostro Consulente del Credito e Assicurativo.

Hai inserito correttamente tutti i dati necessari e a breve riceverai una e-mail con un link da convalidare per inviare i tuoi dati.
Affiliato
Studio Gualdo Tadino Srl
P.zza Martiri della Libertà, 14 06023 Gualdo Tadino (PG)

Il nostro staff


  • Riccardo Costantini
    Affiliato

  • Ilaria Ceccarani
    Coordinatrice

  • Alessio Ramacci
    Responsabile

  • Claudia Patacca
    Coordinatrice

  • Martina Bellucci
    Collaboratrice

  • Lorenzo Biscontini
    Collaboratore

  • Claudia Fortis
    Collaboratrice

  • Sara Onori
    Collaboratrice
P.zza Martiri della Libertà, 14 06023 Gualdo Tadino (PG)
Zona: Gualdo Tadino - Fossato - Sigillo
Mostra su mappa
Orari: Ma. 9.00 - 13.00 Pm. 15.30- 19.30 Sabato pomeriggio su appuntamento.
Affiliato
Studio Gualdo Tadino Srl
P.zza Martiri della Libertà, 14 06023 Gualdo Tadino (PG)

2025 Tecnocasa Franchising S.p.A. - P. IVA 08365160152 - Via Monte Bianco 60/A 20089 Rozzano (MI). Ogni agenzia ha un proprio titolare ed è autonoma. Privacy policy | Policy utilizzo | Cookie policy