5 locali in vendita

Gualdo Tadino, Viale Roma
€ 79.000
5 locali 5 locali
100 Mq 100 Mq
1 bagno 1 bagno

5 locali in vendita

Gualdo Tadino, Viale Roma

Descrizione annuncio

GUALDO TADINO - VIALE ROMA

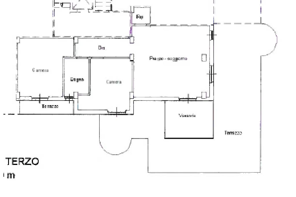
Splendido attico luminoso con un ampio terrazzo, completo di veranda panoramica, perfetta per essere utilizzata anche nei mesi più freddi.

L'immobile si compone di un grande soggiorno, una cucina funzionale, due spaziose camere matrimoniali con terrazzi e un bagno con doccia.

Il condominio è dotato di ascensore, mentre un comodo garage si trova al piano interrato.

Mostra tutto

Nelle vicinanze

Trasporto pubblico Trasporto pubblico
Gualdo Tadino
Gualdo Tadino
1,6 Km
Ricariche auto elettriche Ricariche auto elettriche
Chiesa San Rocco
270 m
Gualdo Tadino Giardini Pubblici | EnelX
620 m
Eneldrive Giardini Pubblici
620 m
Zona Industriale Sud
1,0 Km
Pista Cilabile
1,3 Km
Scuole Scuole
Scuole
270 m
Palestra - Scuola Media Statale Franco Storelli
710 m
Scuola Media Statale Franco Storelli
720 m
Scuola elementare Cartiere
1,6 Km
Farmacia Farmacia
Farmacia
460 m
Parafarmacia Conad
1,8 Km
Supermercati Supermercati
Famila
1,5 Km
Conad
1,8 Km
Bar Bar
Bar
690 m
Bellagio Bar
760 m
Cattleya Disco Club
1,3 Km
Ristoranti Ristoranti
Bordocampo
1,3 Km
La Terrazza di San Guido
1,6 Km
Mostra tutto

Caratteristiche

Rif.:
61044345
Piano:
3 di 3 con ascensore (Piano alto)
Box:
1
Terrazzi:
2
Camere da letto:
2
Arredamento:
Assente
Mostra tutto
Prezzo Prezzo
€ 79.000
Rata mutuo Rata mutuo
€ 375 / mese
Spese annue Spese annue
€ 0
Proponi il tuo prezzoProponi il tuo prezzo
Immobile valutato con T·Valuta

Classe Energetica

F
F
F
F
F
F
F
F
F
EP invernale del fabbricato:
EP estiva del fabbricato:
Anno di costruzione:
1983
Riscaldamento:
Autonomo
Tipo impianto:
A radiatori
Tipo alimentazione:
Metano

Ti interessa visionare l'immobile?

Fissa un appuntamento  Fissa un appuntamento

Richiedi informazioni

Clicca su Leggi per aprire l'informativa
* Questi campi sono obbligatori

Calcola il tuo mutuo

Semplice e senza impegno
Anticipo

( % )
Mutuo

( % )

pochi semplici passi

inserisci i tuoi dati
Questionario completato
Grazie per aver richiesto un appuntamento senza impegno con un nostro Consulente del Credito e Assicurativo.

Hai inserito correttamente tutti i dati necessari e a breve riceverai una e-mail con un link da convalidare per inviare i tuoi dati.
Affiliato
Studio Gualdo Tadino Srl
P.zza Martiri della Libertà, 14 06023 Gualdo Tadino (PG)

Il nostro staff


  • Riccardo Costantini
    Affiliato

  • Ilaria Ceccarani
    Coordinatrice

  • Alessio Ramacci
    Responsabile

  • Claudia Patacca
    Coordinatrice

  • Martina Bellucci
    Collaboratrice

  • Lorenzo Biscontini
    Collaboratore

  • Claudia Fortis
    Collaboratrice

  • Sara Onori
    Collaboratrice
P.zza Martiri della Libertà, 14 06023 Gualdo Tadino (PG)
Zona: Gualdo Tadino - Fossato - Sigillo
Mostra su mappa
Orari: Ma. 9.00 - 13.00 Pm. 15.30- 19.30 Sabato pomeriggio su appuntamento.
Affiliato
Studio Gualdo Tadino Srl
P.zza Martiri della Libertà, 14 06023 Gualdo Tadino (PG)

2026 Tecnocasa Franchising S.p.A. - P. IVA 08365160152 - Via Monte Bianco 60/A 20089 Rozzano (MI). Ogni agenzia ha un proprio titolare ed è autonoma. Privacy policy | Policy utilizzo | Cookie policy