Rustico in vendita

Assisi, Loc. San Presto - San Presto
€ 45.000
3 locali 3 locali
84 Mq 84 Mq
2 bagni 2 bagni

Rustico in vendita

Assisi, Loc. San Presto - San Presto

Descrizione annuncio

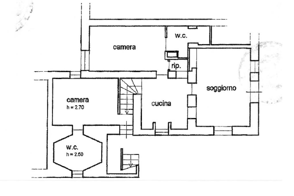
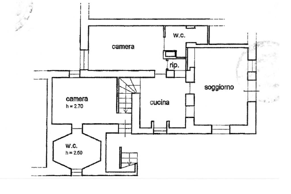
Nel pittoresco borgo di San Presto, a pochi chilometri da Assisi, proponiamo in vendita una suggestiva porzione di casale in pietra.
L’immobile si trova in una posizione tranquilla e panoramica, nel fascino tipico delle colline umbre.

La casa, con doppio ingresso indipendente e piccolo cortile di pertinenza, si sviluppa su più livelli e si presenta in buone condizioni generali, pronta per essere abitata o utilizzata come seconda casa.

Composizione interna:

Soggiorno con angolo cottura

Due camere da letto

Due bagni

Grazie alla sua disposizione e al prezzo interessante, rappresenta una soluzione ideale come punto d’appoggio in Umbria, casa vacanza o investimento per locazioni turistiche.

Mostra tutto

Nelle vicinanze

Trasporto pubblico Trasporto pubblico
Trasporto pubblico
1,3 Km
Ristoranti Ristoranti
Il Noceto
560 m
Mostra tutto

Caratteristiche

Rif.:
61140419
Piano:
2 di 2 (Piano medio)
Camere da letto:
2
Arredamento:
Parziale
Condizionamento:
Assente
Ascensore:
No
Mostra tutto
Prezzo Prezzo
€ 45.000
Rata mutuo Rata mutuo
€ 212 / mese
Spese annue Spese annue
€ 0
Proponi il tuo prezzoProponi il tuo prezzo

Classe Energetica

G
G
G
G
G
G
G
G
G
Anno di costruzione:
1970
Riscaldamento:
Autonomo
Tipo impianto:
A radiatori
Tipo alimentazione:
Metano

Ti interessa visionare l'immobile?

Fissa un appuntamento  Fissa un appuntamento

Richiedi informazioni

Clicca su Leggi per aprire l'informativa
* Questi campi sono obbligatori

Calcola il tuo mutuo

Semplice e senza impegno
Anticipo

( % )
Mutuo

( % )

pochi semplici passi

inserisci i tuoi dati
Questionario completato
Grazie per aver richiesto un appuntamento senza impegno con un nostro Consulente del Credito e Assicurativo.

Hai inserito correttamente tutti i dati necessari e a breve riceverai una e-mail con un link da convalidare per inviare i tuoi dati.
Affiliato
Studio Gualdo Tadino Srl
P.zza Martiri della Libertà, 14 06023 Gualdo Tadino (PG)

Il nostro staff


  • Riccardo Costantini
    Affiliato

  • Ilaria Ceccarani
    Coordinatrice

  • Alessio Ramacci
    Responsabile

  • Claudia Patacca
    Coordinatrice

  • Martina Bellucci
    Collaboratrice

  • Lorenzo Biscontini
    Collaboratore

  • Claudia Fortis
    Collaboratrice

  • Sara Onori
    Collaboratrice
P.zza Martiri della Libertà, 14 06023 Gualdo Tadino (PG)
Zona: Gualdo Tadino - Fossato - Sigillo
Mostra su mappa
Orari: Ma. 9.00 - 13.00 Pm. 15.30- 19.30 Sabato pomeriggio su appuntamento.
Affiliato
Studio Gualdo Tadino Srl
P.zza Martiri della Libertà, 14 06023 Gualdo Tadino (PG)

2025 Tecnocasa Franchising S.p.A. - P. IVA 08365160152 - Via Monte Bianco 60/A 20089 Rozzano (MI). Ogni agenzia ha un proprio titolare ed è autonoma. Privacy policy | Policy utilizzo | Cookie policy